3439, 33 Street SW, Alberta, Calgary
$1,250,000
About Property
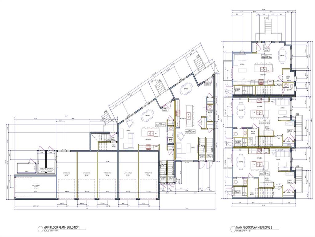
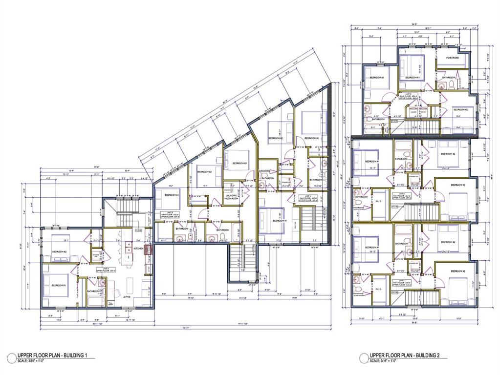
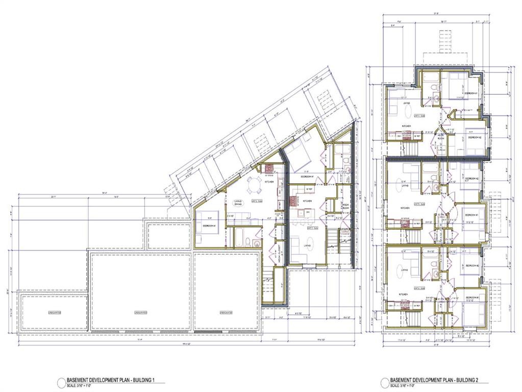
An exceptional opportunity to secure a DP-approved, shovel-ready multi-family development site in Calgary’s desirable southwest. Approved for 11 units, this thoughtfully designed project includes 5 spacious three-bedroom, 2.5-bath above-grade units, 1 two-bedroom above-grade unit, 3 legal two-bedroom basement suites, and 2 one-bedroom basement suites—a highly efficient unit mix tailored for strong rental income and long-term investment performance. Positioned on a quiet, tree-lined street with rear lane access, the lot offers excellent frontage and depth—ideal for maximizing build efficiency and overall project returns. Located in a rapidly evolving inner-city pocket, the area continues to attract developers and investors due to its proximity to downtown, major transportation routes, schools, and everyday amenities. With the Development Permit already secured, a buyer can significantly reduce entitlement risk and timelines, creating a clear path to construction in an increasingly complex approval environment. This is a key advantage for builders and investors looking to deploy capital quickly and efficiently. The existing bungalow offers approximately 1,100+ sq ft above grade, providing holding income potential to help offset carrying costs during the planning or pre-construction phase. Surrounded by ongoing infill and multi-family development, this location continues to see strong demand from both tenants and end users, reinforcing strong long-term fundamentals and exit potential. A rare opportunity to acquire a high-yield, inner-city development site with approvals in place—build now or hold for future upside.
Interior Details
- See Remarks
Outdoor Details
- None
Mr. Amandeep Budhail
Similar Property in Calgary
Are You Already Working With Us?
Please submit your email address to get the latest updates




































