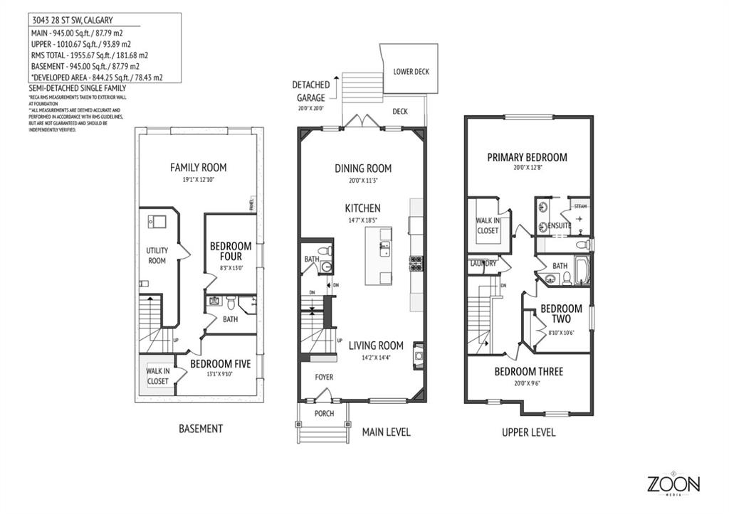
3043, 28 Street SW, Alberta, Calgary
$839,900
About Property
Ideally located in the heart of Killarney, this beautifully maintained custom-built home combines thoughtful design with a warm and inviting atmosphere with a lot of updates. With a desirable west-facing backyard, you’ll enjoy afternoon sunshine and long summer evenings on the spacious two-tier deck. This two storey home has over 2800 square feet of developed space. Step inside and you’re welcomed by beautifully refinished hardwood floors and a bright, open main floor designed for everyday living and entertaining. The layout flows effortlessly from the sitting area into the kitchen, dining space, and comfortable living room. At the heart of the home is the gourmet kitchen, featuring quartz countertops, a large island with stylish new pendant lighting, abundant cabinetry, stainless steel appliances including a gas range and new dishwasher, pantry storage, and under-cabinet lighting. The adjacent sitting area offers plenty of space to relax, highlighted by a cozy gas fireplace. The dining and living areas open through west-facing double doors to the sunny backyard and two-tier deck, creating the perfect indoor-outdoor connection. The yard is complemented by a detached double garage. In 2025 the back lane was paved. Upstairs, you’ll find three generous bedrooms which includes a spacious primary suite with a walk-in closet and a well-appointed ensuite with double sinks and a large steam shower. The fully developed lower level offers excellent flexibility with a large recreation room currently used as a gym, a full bathroom, and another bedroom with a walk-in closet. All doors in the home are solid core. The dedicated bike room could also be converted into a fourth bedroom if needed. Recent upgrades provide peace of mind, including new roof shingles with additional venting, a new garage door, a high-efficiency furnace, and an on-demand hot water system. Both the furnace and hot water system come with a five-year warranty. Additional features include a new water softener and a convenient outdoor hot water tap. All of this in a fantastic location close to transit, shopping, restaurants, and everyday amenities, making it easy to enjoy everything Killarney has to offer. PLEASE compare this to others and you will be impressed. Take a tour today.
Interior Details
- Ceiling Fan(s)
- Double Vanity
- Kitchen Island
- Open Floorplan
- Pantry
- Quartz Counters
- Walk-In Closet(s)
Outdoor Details
- BBQ gas line
- Private Yard
Mr. Amandeep Budhail
Similar Property in Calgary
Are You Already Working With Us?
Please submit your email address to get the latest updates
































































