77, Pinnacle Close, Alberta, Blackfalds
$434,900
About Property
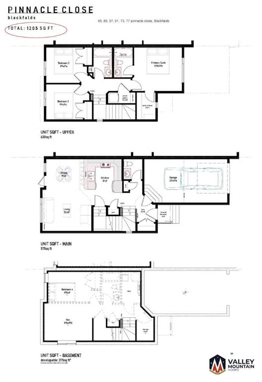
Quality built by Valley Mountain Homes, these brand new duplexes are located on a close on a big beautiful lot with room to build a second garage. Excellent floor plan with 1205 sq ft on 2 levels and an attached single garage. The main floor has 9' ceilings with an open style floor plan. The kitchen has flat panel melamine cabinets, full tile backsplash, quartz countertops and comes with the fridge, stove, dishwasher and hood fan. The eating area and living room have nice sized windows. There is a garden door out to the deck that has aluminum railings and a 6' high dividing fence between the units. There is a 2 pce bath on the main floor. Upstairs has 3 bedrooms, the primary is quite large and it has a 4 pce ensuite & walk in closet. The other 2 bedrooms share a 4 pce bath and there is upper floor laundry for your convenience. The WALKOUT basement is undeveloped. The furnace and hot water tank are high efficient.
Interior Details
- Breakfast Bar
- Open Floorplan
- Quartz Counters
- Storage
- Vinyl Windows
Outdoor Details
- Private Yard
Mr. Amandeep Budhail
Similar Property in Blackfalds
Are You Already Working With Us?
Please submit your email address to get the latest updates


































