440, 32 Avenue NW, Alberta, Calgary
$695,000
About Property
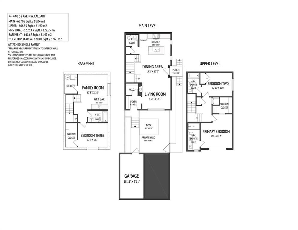
**Open House Sunday April 12 1-3 pm** Welcome to 4-440 32 Avenue NW, a newly built 3 bedroom, 3.5 bathroom townhome spanning nearly 2,000 sq. ft. of total developed living space, including a fully finished basement, with 9 foot ceilings throughout situated in the desirable community of Highland Park in Northwest Calgary. The property was constructed by MountainPoint Homes Ltd., a professional builder with decades of experience working on high-end residences across Calgary. The home showcases superior craftsmanship, premium materials, and a design focused on livability and enduring value. The open-concept main floor offers a bright and inviting living area anchored by a sleek fireplace, complemented by a custom-built kitchen with full-height cabinetry, quartz countertops, and a modern appliance package. Thoughtful design and high-quality finishes elevate each detail from the luxury vinyl plank flooring to the precision millwork and thoughtful lighting selections. Upstairs, the primary suite provides a private retreat with a custom walk-in closet and a spa-inspired ensuite bathroom with heated floors. A secondary bedroom with its own ensuite and convenient upper-floor laundry add everyday functionality. The fully developed lower level expands the living space with a large recreation area, wet bar, three-piece bathroom, and spacious guest bedroom perfect for hosting or family living. Built with energy efficient systems, complete with A/C rough-in and durable Hardie board siding, this property is built to provide homeowners with peace of mind while also coming with a comprehensive new home warranty package. Outside features its own private use fenced in backyard space connecting directly to your own private garage, complete with a gas line and patio, perfect for barbequing or enjoying summer evenings. Located in Highland Park, one of Calgary’s most central and rapidly revitalizing communities. Minutes from Confederation Park, residents will enjoy easy access to downtown, nearby schools, parks, and major amenities, as well as the welcoming charm of a mature neighborhood poised for long-term growth.
Interior Details
- Bar
- Built-in Features
- Double Vanity
- High Ceilings
- Kitchen Island
- No Animal Home
- No Smoking Home
- Open Floorplan
- Pantry
- Vinyl Windows
- Walk-In Closet(s)
Outdoor Details
- BBQ gas line
- Private Entrance
- Private Yard
Mr. Amandeep Budhail
Similar Property in Calgary
Are You Already Working With Us?
Please submit your email address to get the latest updates




















































