25, Westheights Drive, Alberta, Didsbury
$534,900
About Property
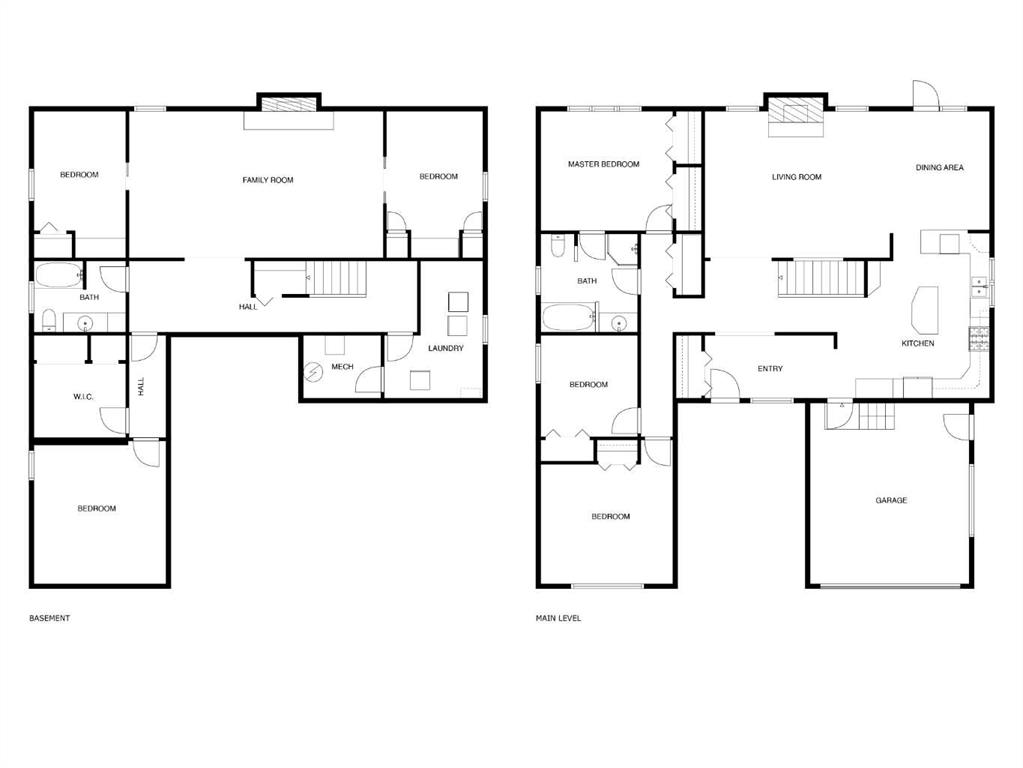
Welcome to your dream family home, perfectly situated on an oversized lot with abundant parking—including a large concrete RV pad. The private backyard is a true retreat, featuring a charming playhouse tucked into the corner and backing directly onto a spacious park with a playground—perfect for families. Offering over 3,200 sq. ft. of developed living space, this warm and inviting 6-bedroom home blends comfort, functionality, and timeless charm. Your experience begins in the beautiful front courtyard and continues into a spacious, welcoming entryway. The sunken living room is filled with character, showcasing a classic wood-burning fireplace with log lighter and a solar tube that fills the space with natural light. Hardwood and Artica tile flooring, along with plush carpeting (updated just three years ago), add both style and comfort throughout. The heart of the home is the well-appointed kitchen, complete with solid pine cabinetry, a large island, gas stove, and a second oven—ideal for cooking and entertaining. The main level also features three generously sized bedrooms and a full family bathroom with a jetted tub and separate shower. Downstairs, the expansive family room offers a cozy second fireplace (gas), creating the perfect gathering space. Two of the three lower-level bedrooms include double pocket doors and built-in desks—great for students or home offices. You’ll also appreciate the oversized laundry room with space for an additional fridge and freezer, along with a newer, high-efficiency boiler in the utility room. Step outside through the dining room garden doors to a large rear deck with pergola, overlooking the backyard and the park beyond—an ideal setting for relaxing or entertaining. Located in the welcoming community of Didsbury, this home offers small-town charm with easy access to schools, parks, and local amenities. Plus, the Didsbury Golf Club is just across the street, adding to the appeal of this fantastic location. Don’t miss your opportunity to call this exceptional property home—schedule your showing today and start imagining the lifestyle that awaits!
Interior Details
- Jetted Tub
- Kitchen Island
- Natural Woodwork
- No Animal Home
- No Smoking Home
- Wood Windows
Outdoor Details
- Courtyard
- Private Entrance
Mr. Amandeep Budhail
Similar Property in Didsbury
Are You Already Working With Us?
Please submit your email address to get the latest updates


















































