6, Elgin Meadows Gardens SE, Alberta, Calgary
$499,900
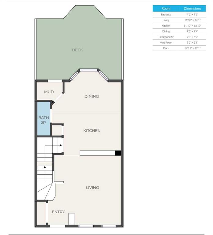
About Property
Located on a quiet street in the SE corner of McKenzie Towne, this home is a short walk from shopping, parks and the McKenzie Towne bus terminal. Main floor offers a bright, open layout with new LVP flooring throughout. The living room has large windows bringing in plenty of natural light, a gas fireplace with mantle and TV ledge. The kitchen includes full-height cabinetry, ample counter space, tile backsplash, and a raised eating bar overlooking the living room. Stainless steel dishwasher, OTR microwave and stove are newer. Adjacent dining nook is positioned in a bay window setting with backyard views. Convenient main floor 2-piece bath plus a functional rear mudroom with built-in storage provides access to the deck and yard. The yard is large with raised garden bed ready for your green thumb. Plenty of space beyond the yard for a future double garage. The second floor configuration offers options for a young couple or roommates. The front primary bedroom includes a walk-in closet and 4-piece ensuite. Rear bedroom is slightly smaller and also has a full ensuite and walkin closet. Unfinished basement offers excellent potential for future development, with a wide open layout ready to be customized to your needs. Currently set up with a dedicated workshop area complete with (negotiable) workbench and storage, plus plenty of additional space for recreation, home gym, or added bedrooms. Mechanical and laundry areas are neatly organized and easily accessible, with rough-in plumbing already in place for a future bathroom.
Interior Details
- No Smoking Home
- Open Floorplan
Outdoor Details
- Private Yard
Mr. Amandeep Budhail
Similar Property in Calgary
Are You Already Working With Us?
Please submit your email address to get the latest updates





















































