90, Heirloom Passage SE, Alberta, Calgary
$449,900
About Property
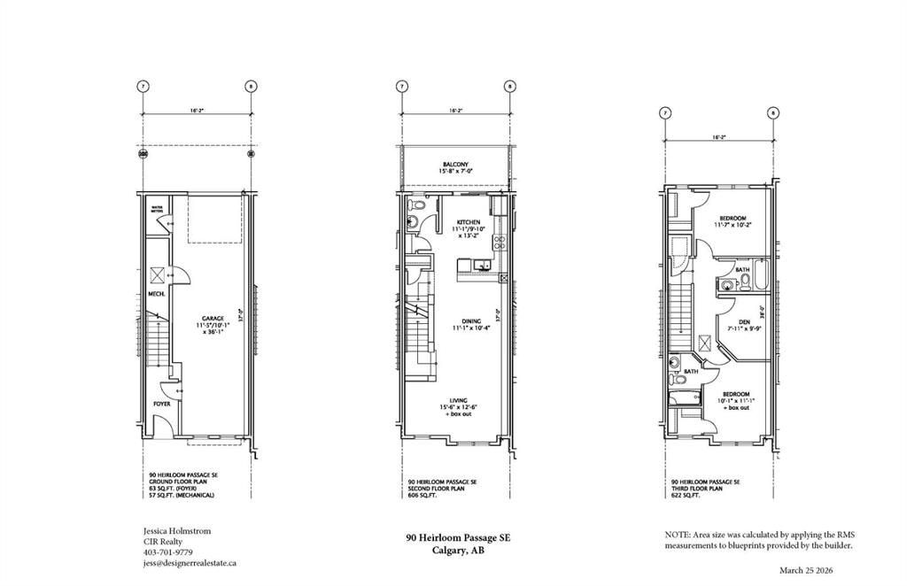
Rangeview (Section 23) is doing something different in southeast Calgary. COMMUNITY GARDENS, WALKABLE PATHWAYS, and PLANNED GATHERING SPACES are already shaping how the neighbourhood will come together—not someday, but as it grows. This THREE-STOREY TOWNHOME fits right into that setting. The main living level (second floor) is confident and clean, anchored by a modern kitchen with QUARTZ COUNTERS, a PENINSULA BREAKFAST BAR, and UPGRADED BACKSPLASH TILE that finishes the space without overcomplicating it. The FULL-WIDTH PRIVATE BALCONY sits just off the kitchen—easy for morning coffee, quick resets, or stepping outside without breaking stride. Up top, the THIRD FLOOR keeps everything that matters in one place. Bedrooms, laundry, and bathrooms are all right where you need them, including a primary bedroom with its own ensuite. A fully enclosed DEN/FLEX ROOM sits alongside—ideal for a home office, toy room or a space that can shift as life does. At ground level, the DOUBLE TANDEM ATTACHED GARAGE quietly solves the practical side of things. TWO-CAR PARKING PLUS ROOM FOR STORAGE, bikes, and everything else that tends to follow you home—without taking over your living space. The WEST-FACING FRONT brings in evening light and a natural connection to the street—one of those details that’s subtle, but noticeable once you’re living in it. A DECEMBER 2026 POSSESSION gives you time to do this properly. No rushed decisions, no scrambling to line things up—just a clear runway to plan your move and step into something new when it’s ready. Rangeview is still taking shape, which is exactly the point. The groundwork is there, the direction is clear, and you’re getting in early enough to watch it come together around you. If this feels like the right move, visit Rangeview as a community to explore all it has to offer! • PLEASE NOTE: Photos are of a DIFFERENT Spec Home of the same model – fit and finish may differ. Interior selections and floorplans shown in photos.
Interior Details
- Breakfast Bar
- High Ceilings
- Open Floorplan
- Quartz Counters
- Storage
- Walk-In Closet(s)
- Wired for Data
Outdoor Details
- Balcony
- BBQ gas line
- Private Entrance
Mr. Amandeep Budhail
Similar Property in Calgary
Are You Already Working With Us?
Please submit your email address to get the latest updates





















































