2232, 30 Avenue SW, Alberta, Calgary
$1,399,000
About Property
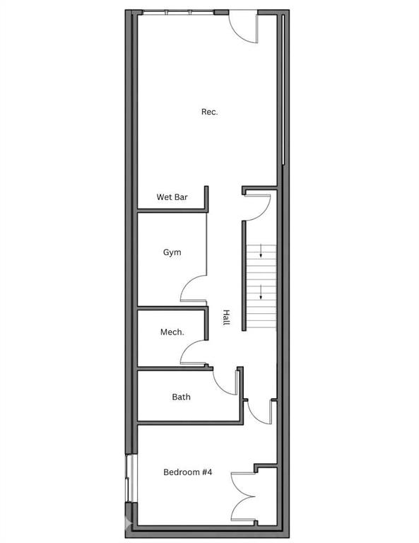
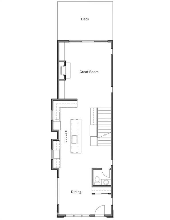
Modern luxury in the heart of Richmond. This exceptional detached two-story home offers a seamless open-concept floor plan designed for both sophisticated entertaining and comfortable family living. This build features two curated color palettes—light and dark. Please refer to photos of the builder's previous builds for a preview of both finish styles. The main level is anchored by a gourmet chef’s kitchen featuring a massive quartz island, premium finishes, and a spacious dining area that flows into the inviting living room with a sleek gas fireplace. A convenient powder room completes this level. The upper floor is thoughtfully designed with a large laundry room and three generous bedrooms—each boasting its own private walk-in closet. The primary retreat is a true sanctuary, featuring an expansive layout and a spa-like five-piece ensuite with a deep soaker tub and double vanity. Rare for the area, this full walkout home leads to a professionally finished lower level. Enjoy a dedicated home gym, a stylish wet bar, a large recreation room, and a fourth guest bedroom. Outside, the walkout access provides a seamless transition to the backyard and the double detached garage. Experience the perfect blend of inner-city convenience and high-end craftsmanship just minutes from Marda Loop and downtown.
Interior Details
- Built-in Features
- Chandelier
- Closet Organizers
- Double Vanity
- High Ceilings
- Kitchen Island
- No Animal Home
- No Smoking Home
- Open Floorplan
- Quartz Counters
- Soaking Tub
- Walk-In Closet(s)
- Wet Bar
Outdoor Details
- Other
- Private Yard
Mr. Amandeep Budhail
Similar Property in Calgary
Are You Already Working With Us?
Please submit your email address to get the latest updates






































