905, Clennel Crescent SE, Alberta, Medicine Hat
$185,500
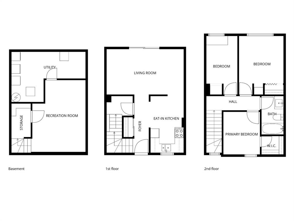
About Property
Enjoy NO CONDO FEES in this two-story townhouse in Southview with updates. It offers practical living with three bedrooms upstairs, including a primary with a walk-in closet, and a full bathroom. The living room opens to a spacious fenced backyard with no neighbours behind. Notable updates include new shingles (July 2023), a newer rear deck and fence, a newer hot water tank, as well as a replaced front door and kitchen window. Attic insulation was also upgraded to R-540, all completed in 2024. Laundry is conveniently located in the basement, and a concrete driveway completes the setup. Located in a well-established Southview neighbourhood, you’re close to parks, schools, shopping, and local amenities, making everyday life easy and convenient. Contact a real estate agent today to schedule a viewing!
Interior Details
- Ceiling Fan(s)
- Closet Organizers
- Storage
- Walk-In Closet(s)
Outdoor Details
- Dog Run
Mr. Amandeep Budhail
Similar Property in Medicine Hat
Are You Already Working With Us?
Please submit your email address to get the latest updates


































