9065, Cityscape Drive NE, Alberta, Calgary
$479,990
About Property
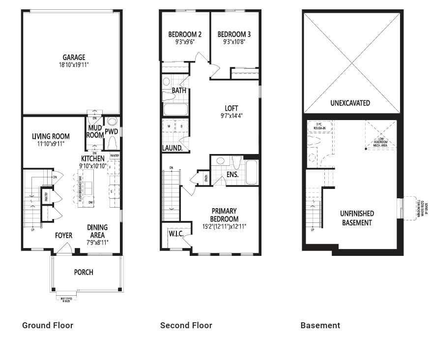
Click brochure link for more details** The Ripley End welcomes you with a generous front porch before leading into an open main floor designed for connection. The kitchen, complete with a central quartz island and breakfast bar, flows seamlessly into the dining and living areas, creating a natural hub your everyday living. Upstairs, a bright, large loft adds flexible space for relaxation or productivity. Bedrooms two and three are close to the full bathroom and conveniently located laundry room. Relax in the sizable primary bedroom that offers a spacious walk-in closet and private ensuite. Mattamy includes 8 solar panels on all homes as a standard inclusion! *Renderings are representative - exterior colours may vary.
Interior Details
- Breakfast Bar
- Built-in Features
- Closet Organizers
- High Ceilings
- Kitchen Island
- No Animal Home
- No Smoking Home
- Open Floorplan
- Quartz Counters
- See Remarks
- Vinyl Windows
- Walk-In Closet(s)
Outdoor Details
- Other
- Private Entrance
Mr. Amandeep Budhail
Similar Property in Calgary
Are You Already Working With Us?
Please submit your email address to get the latest updates

















