9085, Cityscape Drive NE, Alberta, Calgary
$447,990
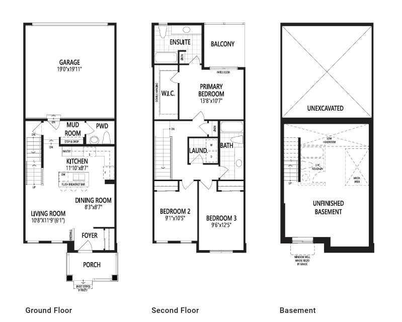
About Property
Click brochure link for more details** The Fisher welcomes you through a bright foyer into an open main floor where the living and dining areas connect effortlessly. The L-shaped kitchen sits at the heart of the home, featuring a central quartz island with breakfast bar seating and ample counter space for daily routines or hosting guests. At the rear, a practical mudroom with garage access and a discreet powder room keep the main level organized and functional. Upstairs, bedrooms two and three are positioned near a full bathroom and laundry room and linen storage conveniently located nearby. At the back of the home, the primary bedroom offers a private balcony, generous walk-in closet and extra-large ensuite, creating a comfortable retreat that feels both separate and connected. Mattamy includes 8 solar panels on all homes as a standard inclusion! *Renderings are representative - exterior colours may vary.
Interior Details
- Breakfast Bar
- Built-in Features
- Closet Organizers
- High Ceilings
- Kitchen Island
- No Animal Home
- No Smoking Home
- Open Floorplan
- Quartz Counters
- See Remarks
- Vinyl Windows
- Walk-In Closet(s)
Outdoor Details
- Other
- Private Entrance
Mr. Amandeep Budhail
Similar Property in Calgary
Are You Already Working With Us?
Please submit your email address to get the latest updates

















