42, Creekview Avenue SW, Alberta, Calgary
$569,900
About Property
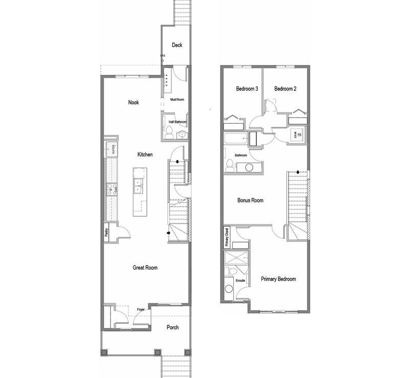
READY FOR POSSESSION JUNE 30, 2026. Welcome to a home that feels fresh, functional, and ready for what comes next. This brand new Cedarglen Homes Frank 18 model offers a thoughtful layout that balances everyday comfort with future flexibility. From the covered concrete FRONT VERANDA to the clean modern exterior, the curb appeal sets a confident first impression. Inside, the main floor flows effortlessly with an OPEN CONCEPT design that connects the great room, dining area, and central kitchen. Finished with QUARTZ COUNTERTOPS and FULL HEIGHT TWO TONED cabinetry (white upper cabinets and warm wood tone lowers/island), the kitchen becomes the natural heart of the home. As the buyer of this home, you’ll have an allowance of $6300 to select your dream appliances! A practical mudroom with a bench and coathooks keeps daily life organized and offers access to the 2 pc powder room. Upstairs, a central BONUS ROOM creates valuable separation between spaces, ideal for relaxing or working from home. The front facing primary bedroom offers a WALK IN CLOSET and private ENSUITE, while the two additional bedrooms share a full 4 pc bathroom. Upper level laundry adds convenience that simplifies busy routines. Modern finishes including LUXURY VINYL PLANK flooring, and POT LIGHTING create a bright, cohesive feel throughout. Built for long term value, this home features TRIPLE PANE WINDOWS, and TANKLESS HOT WATER. The basement offers a SEPARATE ENTRANCE, SECONDARY SUITE ROUGH IN, providing future potential as needs evolve (subject to city approvals and permits). Outside, the FULLY COMPLETED DECK extends living into the outdoors, complemented by a GRAVEL PARKING PAD and you’ll receive a landscaping rebate of $2000 when your front landscaping is completed within 1 year of closing. Surrounded by pathways and natural reserve lands, Creekview offers a peaceful setting with convenient access to Macleod Trail and Stoney Trail. This is a smart opportunity to own a brand new semi-detached home in a desirable community. Come experience the space and imagine the possibilities! *Photos are representative - they are from other completed properties with similar floor plans*
Interior Details
- Bathroom Rough-in
- Kitchen Island
- No Animal Home
- No Smoking Home
- Open Floorplan
- Pantry
- Quartz Counters
- Separate Entrance
- Tankless Hot Water
- Walk-In Closet(s)
Outdoor Details
- BBQ gas line
Mr. Amandeep Budhail
Similar Property in Calgary
Are You Already Working With Us?
Please submit your email address to get the latest updates






























