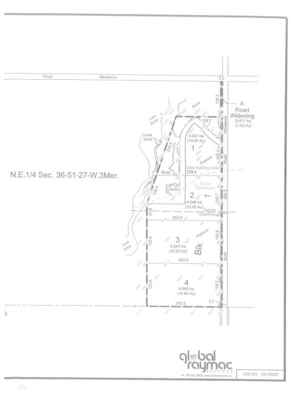
LOT 3, NE 36-51-27 W3rd, Saskatchewan, Rural
$199,900
About Property
Buy land – they aren’t making it anymore! You will find a 10.01 acre parcel with lovely prairie views, overlooking the creek bank with a mix of natural bush, pasture land and plenty of building site options to consider. Power and gas run through Lot #2 (just to the North) so utilities are onsite and properties in the area have had no issues in obtaining satisfactory water. Travel time is around 25 minutes to the City of Lloydminster and 5 minutes to Hillmond, an easy drive on pavement until the range road providing for the perfect blend of country living with a reasonable proximity to amenities. The countryside holds the key to simplicity, peace and renewal. Breathing deeply and sleeping soundly is good for the soul, embrace the opportunity for quiet simplicity with a family homestead or your private retreat and get rural. Make your move!
Interior Details
Outdoor Details
Mr. Amandeep Budhail
Similar Property in Rural
Are You Already Working With Us?
Please submit your email address to get the latest updates

































