125, Vantage Drive, Alberta, Cochrane
$729,900
About Property
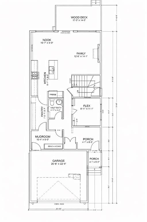
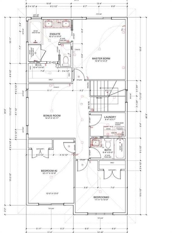
Welcome to the new community of Greystone! This is the the perfect home for families looking for a welcoming and cozy lifestyle. This stunning three bedroom home with an attached double car garage features tons of natural light. The Main Floor has a chic Kitchen with a great appliance package, dual toned cabinets with sleek black hardware and beautiful quartz countertops, nice size island, Nook, Family Room and Deck. Upstairs has 3 large bedrooms including a Primary bedroom with 5-piece Ensuite, walk-in closet, Laundry Room and a Bonus room. This home is perfect for a growing family, and you can sleep well at night knowing you have a brand new home with Alberta new home warranty. Possession will be in July 2026. Call to book your private showing today!
Interior Details
- Double Vanity
- Kitchen Island
- No Animal Home
- No Smoking Home
- Open Floorplan
- Walk-In Closet(s)
Outdoor Details
- Lighting
Mr. Amandeep Budhail
Similar Property in Cochrane
Are You Already Working With Us?
Please submit your email address to get the latest updates



















