80, Heritage Manor, Alberta, Cochrane
$569,000
About Property
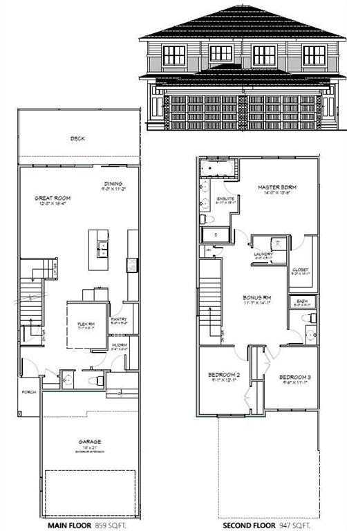
OPEN HOUSE - SATURDAY and SUNDAY - MAY 16 and 17 - 1PM to 4PM - WALK-OUT BASEMENT, SOUTH FACING BACKYARD, 22 FEET WIDE DECK WITH PANORAMIC VIEWS !!!!! Welcome to the Harris-ll, located in the newly developed community of West Hawk — a peaceful, nature-inspired neighborhood surrounded by scenic mountain views and steps from future parks. This thoughtfully designed home opens to a charming foyer that leads to a versatile flex room, a convenient half bathroom with vanity sink, and a direct access to the double car garage. At the rear of the home, the L-shaped kitchen with 42" cabinetry overlooks a spacious great room and dining area and a 22 feet wide deck overlooking a spacious backyard and — perfect for entertaining family and friends. Upstairs, you’re welcomed into a centrally located, spacious bonus room—perfect for family time or a cozy retreat. The second floor also features a large primary bedroom complete with a walk-in closet and private 5-piece ensuite. A spacious bonus room, two generously sized secondary bedrooms, a full bathroom, and a convenient laundry room complete the upper level. QUARTZ COUNTERTOPS THROUGHOUT, ALL UNDERMOUNT SINKS, POT LIGHTS IN KITCHEN INCLUDED, 9 FEET BASEMENT CEILING. Call now for more details !!! Interior pictures are for reference only and from other listing (108 Heritage Manor)
Interior Details
- Breakfast Bar
- High Ceilings
- Kitchen Island
- Pantry
- Quartz Counters
- Separate Entrance
- Soaking Tub
Outdoor Details
- BBQ gas line
- Lighting
- Private Entrance
- Private Yard
Mr. Amandeep Budhail
Similar Property in Cochrane
Are You Already Working With Us?
Please submit your email address to get the latest updates





































