57, Lincoln Street, Alberta, Sylvan Lake
$567,900
About Property
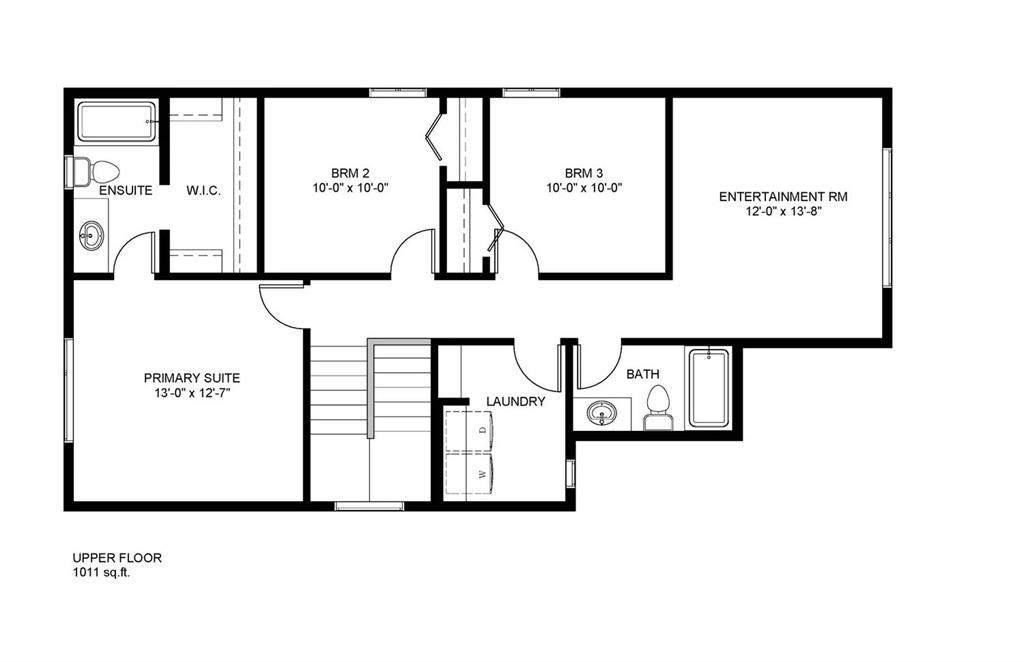
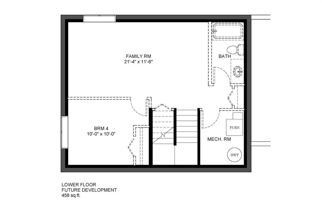
Be the first owner of this brand new Laebon Home situated in the sought after neighbourhood of Beacon Hill, just steps from multiple parks, green spaces, and Beacon Hill Elementary! This stylish Paxton two storey floor plan offers 1707 square feet above grade, a wide open living space, large windows, 2nd floor laundry, and a large bonus room! The main floor features vinyl plank flooring throughout, and a beautiful kitchen offering two toned raised cabinetry, stainless steel appliances, quartz countertops, a large island with eating bar, and a large walk in pantry. The adjacent eating area has sliding patio doors that lead out to the deck. Head upstairs to find two nicely sized kids/spare rooms that share a large 4 pce bath, and a large master bedroom with its own private 4 pce ensuite and huge walk in closet. Laundry is conveniently located near the bedrooms, and the large and bright bonus room gives you additional living space to enjoy.The attached garage is insulated, drywalled, and taped. If you need more space, the builder can complete the basement development for you, and allowances can also be provided for a washer and dryer to make this a completely move in ready package. Poured concrete front driveway, front sod, and rear topsoil to grade are included in the price and will be completed as weather permits. 1 year builder warranty and 10 year Alberta New Home Warranty are included. Taxes have yet to be assessed. This home has an estimated completion date of May 2026. Photos and renderings are examples from a similar home built previously and do not necessarily reflect the exact finishes and colours used in this home.
Interior Details
- Breakfast Bar
- Closet Organizers
- Kitchen Island
- No Animal Home
- No Smoking Home
- Open Floorplan
- Pantry
- Quartz Counters
- Separate Entrance
- Vinyl Windows
- Walk-In Closet(s)
Outdoor Details
- Private Entrance
- Private Yard
Mr. Amandeep Budhail
Similar Property in Sylvan Lake
Are You Already Working With Us?
Please submit your email address to get the latest updates

































