41177, Range Road 18-1, Alberta, Rural Stettler No. 6, County of
$225,000
About Property
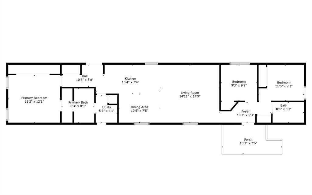
If you’ve been longing for wide open space and total privacy, this 10.26-acre property in the County of Stettler might be exactly what you’ve been waiting for. Surrounded by mature trees, the entire yard is beautifully sheltered from the outside world—a peaceful, private haven with room to grow, build, and create. The 1996 mobile home is serviced with a well, septic system, and 100 amp power, offering a solid starting point for your acreage dreams. Whether you’re looking to homestead or simply enjoy the quiet life, there’s space here to make it your own. The fully finished and heated shop is a dream for mechanics and woodworkers alike. Outfitted with 220-volt wiring, multiple plug-ins, and a poured concrete pad out front, it’s the ideal space for working, creating, or just having a place to call your own. There’s also an additional power pole in the southeast corner of the property, complete with 220-volt wiring—offering the potential for future expansion, additional outbuildings, or the potential to service a second site. Zoned Ag, this property is well suited for a hobby farm, a small herd of cattle, or a few horses. If you’re craving a quieter life and a place to build your own kind of future, this private acreage offers the space, seclusion, and potential to do just that.
Interior Details
- Skylight(s)
- Vaulted Ceiling(s)
- Vinyl Windows
Outdoor Details
- None
Mr. Amandeep Budhail
Similar Property in Rural Stettler No. 6, County of
Are You Already Working With Us?
Please submit your email address to get the latest updates


























