20536, Sheriff King Street SW, Alberta, Calgary
$499,900
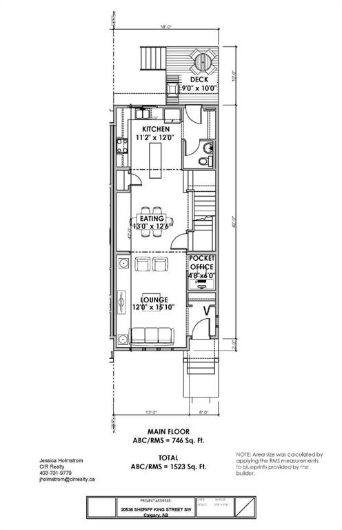
About Property
END-UNIT TOWNHOME WITH NO CONDO FEES — this unit is built for a true lock-and-leave lifestyle—clean, efficient, and intentionally designed so your life fits without friction. No projects, no placeholder spaces, no “we’ll deal with that later.” And yes — WINDOW COVERINGS ARE ALREADY INCLUDED, because move-in should actually mean move-in. The main floor gets straight to the point. A well-scaled kitchen delivers QUARTZ COUNTERS, 42" UPPER CABINETRY, A BUILT-IN MICROWAVE, CHIMNEY-STYLE HOOD FAN, and a Silgranit undermount kitchen sink—details that feel elevated without trying to impress anyone but you. The dining and living areas flow naturally, making everyday routines feel easy and entertaining feel unforced. And then there’s the POCKET OFFICE—quietly one of the smartest decisions in the home. Not a corner, not a compromise. A DEDICATED SPACE for work-from-home days, admin, studying, or simply keeping life organized without spreading it across the kitchen table. Upstairs, three bedrooms are arranged around a CENTRAL BONUS ROOM, creating separation without wasted space. The primary bedroom includes a private ensuite and walk-in closet, while upper-floor laundry (WASHER AND DRYER INCLUDED) keeps daily life contained where it belongs. The unfinished basement with BATHROOM ROUGH-IN gives you flexibility for the future—storage now, options later—without forcing decisions before you’re ready. REAR LANE ACCESS WITH A GRAVEL PARKING PAD keeps ownership simple and maintenance low. Belmont keeps you close to what matters without the sprawl: NEW PARKS AND PLAYGROUNDS ALREADY IN PLACE, the future library and field house on the way, and quick access to both Macleod Trail and the Ring Road. Whether you’re stepping out for coffee or staying in for a quiet weekend, the balance here just works—modern, manageable, and ready for THE KIND OF OWNERSHIP THAT DOESN’T COME WITH MONTHLY FEES. Come see how naturally this one fits! • PLEASE NOTE: Photos are of a DIFFERENT Spec Home of the same model – fit and finish may differ. Interior selections and floorplans shown in photos. Kitchen appliances are included, and will be installed prior to possession.
Interior Details
- Bathroom Rough-in
- Kitchen Island
- Open Floorplan
- Pantry
- Quartz Counters
- Walk-In Closet(s)
- Wired for Data
Outdoor Details
- Private Entrance
Mr. Amandeep Budhail
Similar Property in Calgary
Are You Already Working With Us?
Please submit your email address to get the latest updates






















































