5901, 50 Avenue, Alberta, Innisfail
$3,856,000
About Property
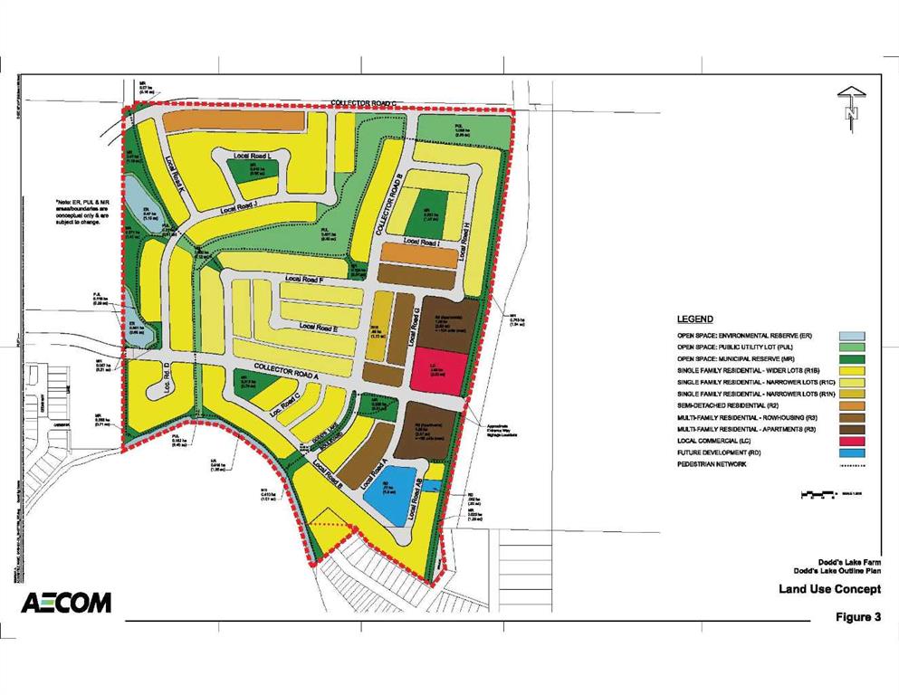
ATTENTION DEVELOPERS & INVESTORS!! 136 Acres of PRIME Residential Mixed Development land with 1785 feet of Dodd's Lake Shoreline in the Heart of Innisfail Alberta. This unique property is an Excellent investment and Development opportunity. An Extensive study with outline plan is in place with the current local ASP & Geo Technical Report. There are approximately 310 single detached dwellings, 65 semi-detached dwellings, 104 row housing units and 257 apartment units with a small neighborhood commercial parcel included in the plan. The properties wetlands and creek only add to the charm that this neighborhood will be developed into with the town fully supportive to any new developers plans for build out. Don't miss this rare opportunity! "Visit REALTOR® website for additional information"
Interior Details
Outdoor Details
Mr. Amandeep Budhail
Similar Property in Innisfail
Are You Already Working With Us?
Please submit your email address to get the latest updates





























