15, Copperpond Landing SE, Alberta, Calgary
$424,900
About Property
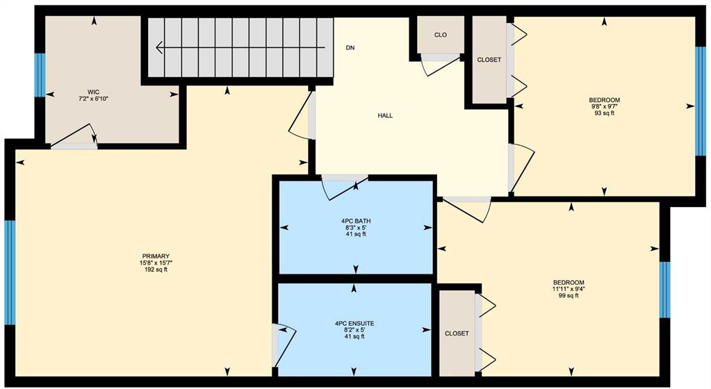
OPEN HOUSE APRIL 4 2PM TO 4PM. What in incredible opportunity to own your own little piece of paradise. This barely lived in home is up for sale by the first owners. They can guarantee there has never been any animals or smoking within the property in their ownership. This home is just like new. A front attached garage to hide your car away from the elements! An open kitchen with lots of cabinet and counterspace. A large eating area that looking out onto road, this door you can use as your primary if you want it to feel more like a house and less like a townhouse. The living room gives you lots of room for relaxing or visiting with friends and family. Three spacious bedrooms upstairs give everyone lots of room to spread out, whether it be kids or roommates. AC is an added plus. The unfinished basement is perfect to expand your living space or to add in more bedrooms, if that is what you are looking for. All of this at a price that is unheard of. These kind of opportunities don't happen open so don't miss out.
Interior Details
- Breakfast Bar
- Closet Organizers
- Granite Counters
- No Animal Home
- No Smoking Home
- Open Floorplan
- Pantry
- Track Lighting
- Walk-In Closet(s)
Outdoor Details
- None
Mr. Amandeep Budhail
Similar Property in Calgary
Are You Already Working With Us?
Please submit your email address to get the latest updates






















































