7, Sunset Crescent, Alberta, Okotoks
$750,000
About Property
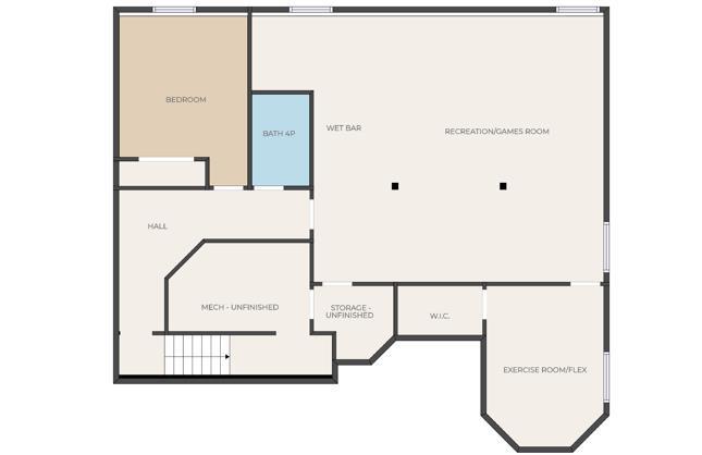
Large renovated bungalow in Suntree! So much space and over $135 000 of renovations in the last 2 years! The previous owners replaced shingles in 2017 and windows in 2021 and the current owners removed poly-b, replaced 2 furnaces, added AC, completely renovated the kitchen, added a huge ensuite and replaced all the flooring (LVP). Main floor features living/dining room with French doors that is currently used as a craft room but would make an awesome home office especially if you needed a lot of space! The renovated kitchen features dekton countertops, oversized upper cabinets and plenty of lower pot drawers. Gas stove, fridge with water dispenser, and OTR microwave are all less than 2 years old. Cozy family room has gas fireplace and opens up onto the south facing covered deck with sun shades. Lower deck has been extended if you want to soak up the sun! Primary bedroom now has a huge ensuite/walkin closet with large shower, double sinks and private WC. (Easy to convert this room back to a 3rd main floor bedroom). Second main floor bedroom is used as a home office. Main bathroom was also renovated. Downstairs in the sunshine basement, you will find 2 more bedrooms , 4 piece bathroom and rec room with kitchenette. Perfect for teens looking for their own space to hang out. Other improvements in the last 2 years include central vac, garage door, additional attic insulation, baseboard, casing, doors, lighting...the list goes on!
Interior Details
- Bar
- Central Vacuum
- Closet Organizers
- No Smoking Home
- Walk-In Closet(s)
Outdoor Details
- Private Yard
Mr. Amandeep Budhail
Similar Property in Okotoks
Are You Already Working With Us?
Please submit your email address to get the latest updates
























































