64, Rockyvale Drive NW, Alberta, Calgary
$599,999
About Property
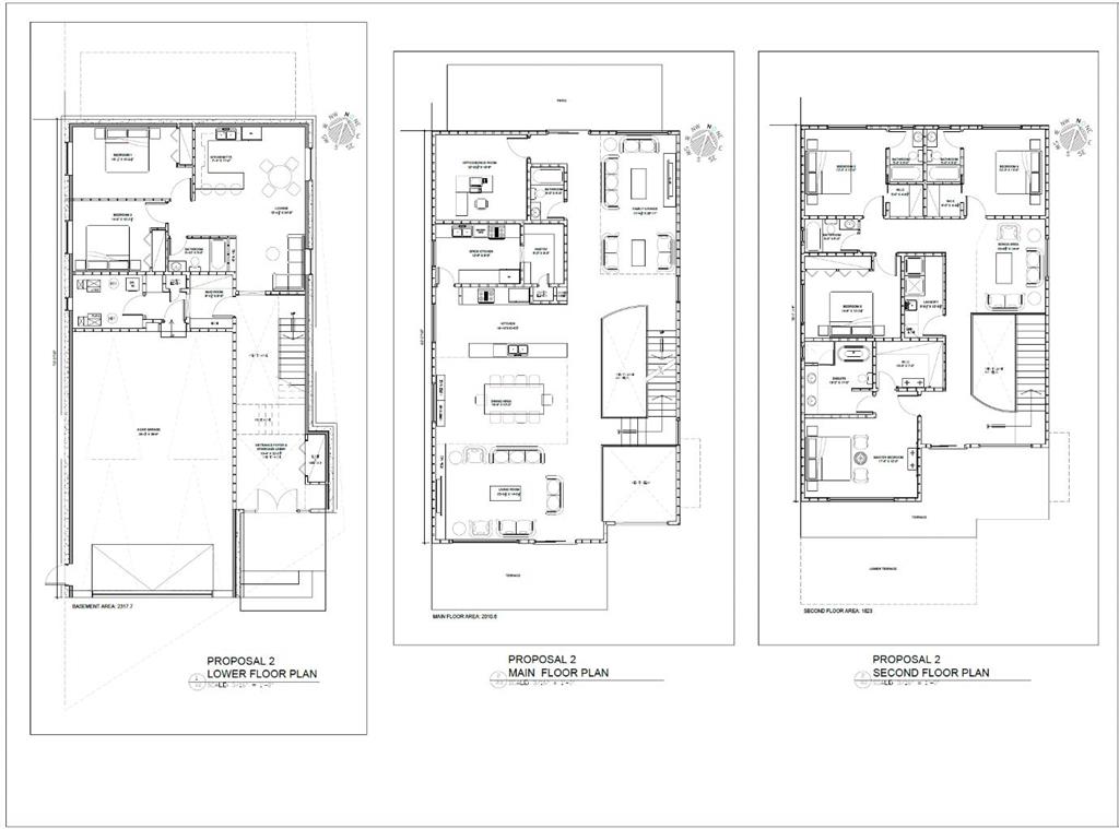
No Building commitment, Bring your own builder 3 lots available, lot 17, 18 & 12. ( Lot 12 is walkout) Build your dream custom home 3000-5000 sq/ft on an expansive 7,427 sq ft (63.5 ft Front, 138 & 171 ft sides, and 43 ft back ) Estate lot in sought-after Rocky Ridge, NW Calgary, perfectly positioned across from a tranquil pond and backing onto green space and trees. This rare homesite offers true four-season serenity, with no neighbours behind, direct access to pathways, and sweeping Rocky Mountain views that frame your backyard and fill your main living spaces with natural beauty. Set high on Calgary’s northwest ridge, your custom design can take full advantage of the rolling landscape—imagine a sun-filled great room with wall-to-wall windows, a gourmet kitchen and covered deck overlooking the treetops. Morning walks around the wetland ponds, evenings watching the sunset over the Rockies, and easy access to Rocky Ridge’s extensive pathways, parks, and Ranch Centre amenities create an unparalleled lifestyle that feels like a retreat while still being minutes from major routes, C-Train access, and northwest shopping and services.
Interior Details
Outdoor Details
Mr. Amandeep Budhail
Similar Property in Calgary
Are You Already Working With Us?
Please submit your email address to get the latest updates


























