3305, New Brighton Gardens SE, Alberta, Calgary
$389,800
About Property
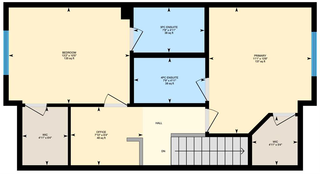
Welcome to this beautifully maintained townhome located in a well-managed complex, offering a functional double master bedroom design and an open-concept main floor perfect for modern living. The kitchen features a central island, tile backsplash, and built-in microwave hood fan, connecting seamlessly to the dining and living areas — an ideal layout for gatherings or relaxed evenings at home. Upstairs, you’ll find two spacious master suites, each with a private ensuite, along with a versatile den area ideal for a home office. Neutral finishes and laminate flooring throughout the main level create a clean and timeless look. This home also includes a double attached garage (19’x17’), extra storage space, and a convenient laundry sink. Step outside to enjoy your private fenced front patio, perfect for morning coffee, entertaining, or a small play space for pets. Located steps away from a school, bus stop with LRT connection, parks, and shopping — this home offers both comfort and convenience in one of the most desirable areas of the community.
Interior Details
- Kitchen Island
- Laminate Counters
- Wired for Data
Outdoor Details
- Courtyard
- Garden
Mr. Amandeep Budhail
Similar Property in Calgary
Are You Already Working With Us?
Please submit your email address to get the latest updates





















































