117, Highview Gate SE, Alberta, Airdrie
$534,500
About Property
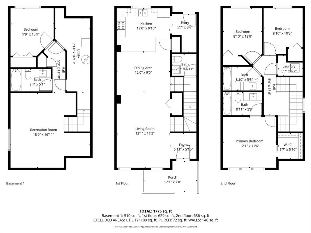
*** Open House Sat January 31, 1-4pm and Sunday Feb 1, 1-4 pm *** Welcome to this beautiful half duplex located in the desirable community of Lanark. Thoughtfully finished with durable Hardie Board siding, this bright, east-facing home is filled with natural light from large windows that highlight the luxury vinyl plank flooring throughout the main floor. The open-concept layout offers a seamless flow between the living room, dining area, and kitchen, making the space both functional and inviting. Located at the back of the home, the kitchen features quartz countertops throughout, finished with a stylish waterfall edge detail that adds a clean, modern touch. A convenient half bath is located on the landing leading down to the lower level. Upstairs, you’ll find three well-sized bedrooms, two full bathrooms, and the convenience of upper-level laundry. The primary bedroom includes a walk-in closet and a private 4-piece ensuite, creating a comfortable and practical retreat. The fully finished basement extends your living space and includes a comfortable family room, a fourth bedroom, and a full bathroom—perfect for guests, teens, or additional living space. Ideally situated just off 40 Avenue, this home offers quick access to Highway 2, making commuting into Calgary easy while still enjoying everything this growing community has to offer.
Interior Details
- Chandelier
- Open Floorplan
- Quartz Counters
- Vinyl Windows
- Walk-In Closet(s)
Outdoor Details
- Private Yard
Mr. Amandeep Budhail
Similar Property in Airdrie
Are You Already Working With Us?
Please submit your email address to get the latest updates


























































