5006, 52 Street, Alberta, Castor
$189,900
About Property
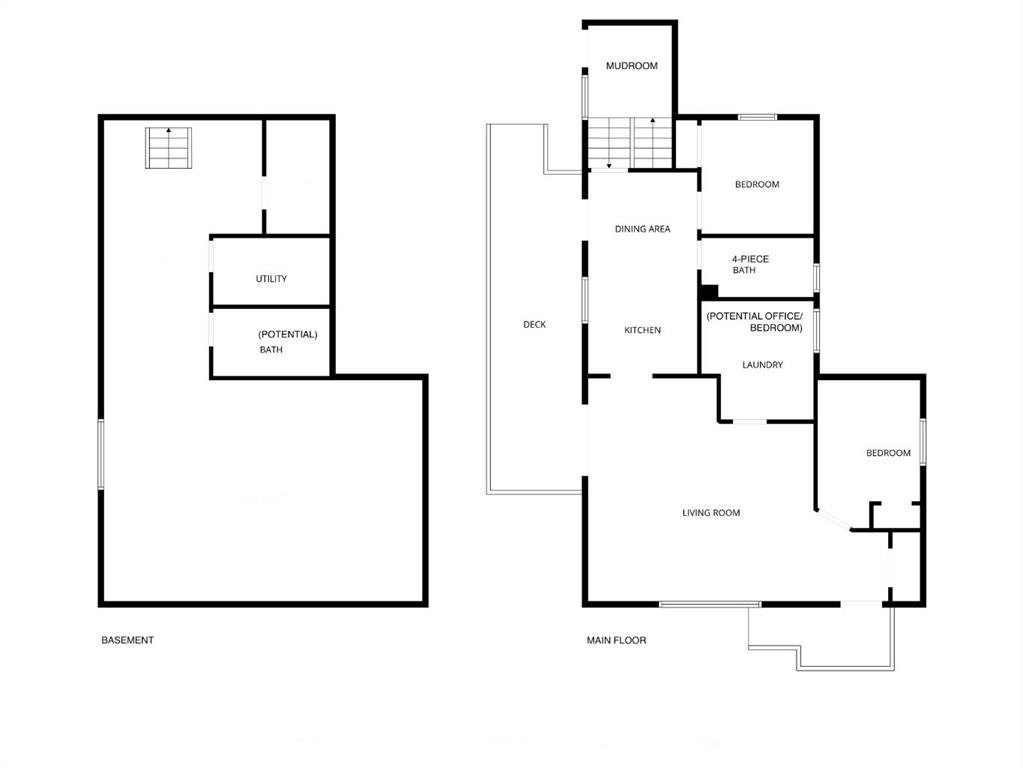
Situated on a generous 125’ x 115’ lot, this property offers excellent potential for those seeking comfortable small-town living with room to grow. Enjoy the convenience of main-floor living, complete with a laundry room on the same level which could easily be converted into a third bedroom if desired. The bright, eat-in kitchen provides access to a deck, perfect for morning coffee or quiet relaxation. A large living room also opens onto the same deck through sliding doors, making indoor-outdoor living a breeze. The main floor includes a 4-piece bathroom, while the basement features the start of a second bathroom (toilet already installed) and offers unfinished space ready for your finishing ideas. With the potential for a separate basement entry, this home could be configured for additional living options. A heated 2-car detached garage with a concrete floor provides excellent space for parking, storage, or hobbies with plenty of room for your tools and toys. Located within walking distance to the school and downtown Castor, this property blends practicality, space, and potential in one great package.
Interior Details
- No Smoking Home
Outdoor Details
- Other
Mr. Amandeep Budhail
Similar Property in Castor
Are You Already Working With Us?
Please submit your email address to get the latest updates














































