4070, Sawgrass Street NW, Alberta, Airdrie
$650,000
About Property
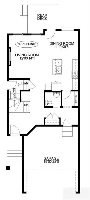
Welcome to the Ardboe by McKee Homes! This beautifully designed 1,800 sq ft Ardboe model by McKee Homes offers the perfect blend of style, function, and comfort in the community of Sawgrass Park. Featuring 3 spacious bedrooms, 2.5 bathrooms, and thoughtfully curated finishes, this home is ideal for families or those looking for extra space. Step inside to a bright and inviting open-concept main floor, centered around a cozy electric fireplace in the living room – perfect for relaxing or entertaining year-round. The gourmet kitchen flows seamlessly into the dining and living areas, offering a warm and welcoming atmosphere. Upstairs, you will find all three bedrooms, including a luxurious primary suite complete with a 5-piece ensuite, walk-in closet, and abundant natural light. A versatile lifestyle room on the upper level provides the perfect space for a home office, media room, or play area. A well-appointed main bathroom and a convenient laundry to complete the upper floor. Enjoy outdoor living on the rear deck, equipped with a gas line hookup – perfect for barbecues and evenings outside with family and friends. Don’t miss your chance to own this thoughtfully designed home in Sawgrass Park. Experience the quality and craftsmanship McKee Homes is known for – book your showing today!
Interior Details
- Kitchen Island
- Pantry
- Quartz Counters
- Walk-In Closet(s)
Outdoor Details
- BBQ gas line
Mr. Amandeep Budhail
Similar Property in Airdrie
Are You Already Working With Us?
Please submit your email address to get the latest updates


















