34, Lakeshore Drive, Alberta, Grandview
$575,000
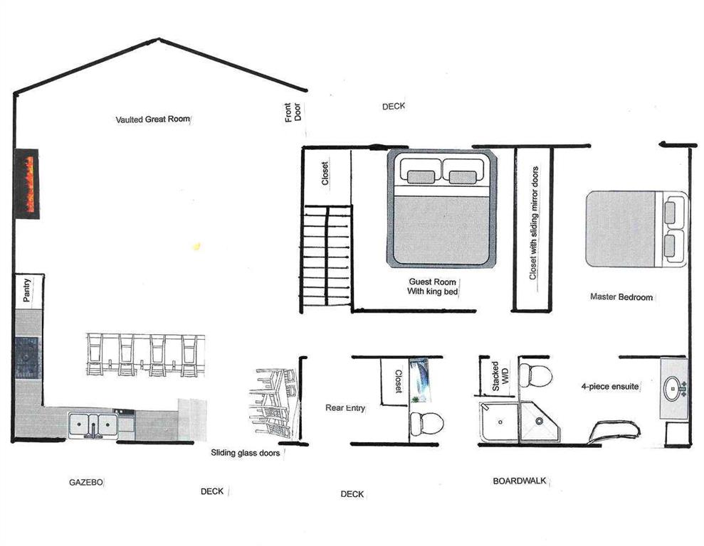
About Property
For more information, please click the "More Information" button. This elevated lot offers wonderful views of Pigeon Lake and is just steps away from the lake access. The warmth and charm of Cedar-lined vaulted ceilings throughout the open concept main living area are showcased by abundant lake-facing windows. Newly renovated 4-season lake house with 4 LG stainless appliances (gas stove) in the kitchen as well as a new stacked washer and dryer on the main floor. A newly built gas fireplace has a live-edge mantle. The guest bedroom fits a king-sized bed and is across from the main bath. The kitchen has new quartz countertops and a big island with seating for four. All windows have blinds. New flooring throughout the main storey, and the basement has carpet. s. South-facing tree-lined backyard offers a firepit with benches and a spacious deck with gazebo. New gas furnace and water heater installed 3 years ago; the roof was done in 2017. The full basement has lots of room for more rooms as you see fit.
Interior Details
- Ceiling Fan(s)
- High Ceilings
- Kitchen Island
- No Smoking Home
- Open Floorplan
- Soaking Tub
- Stone Counters
- Sump Pump(s)
Outdoor Details
- Fire Pit
- Private Yard
Mr. Amandeep Budhail
Similar Property in Grandview
Are You Already Working With Us?
Please submit your email address to get the latest updates





































