3130, 39 Street SW, Alberta, Calgary
$939,900
About Property
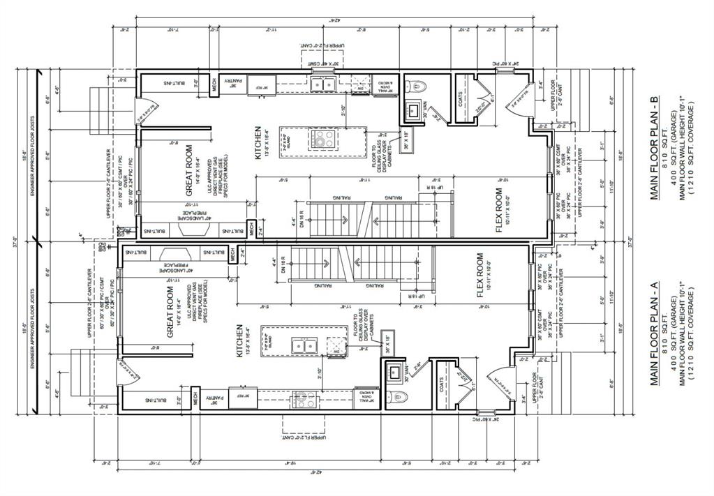
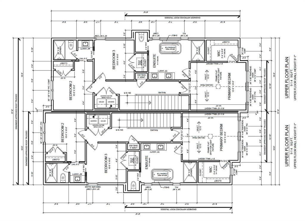
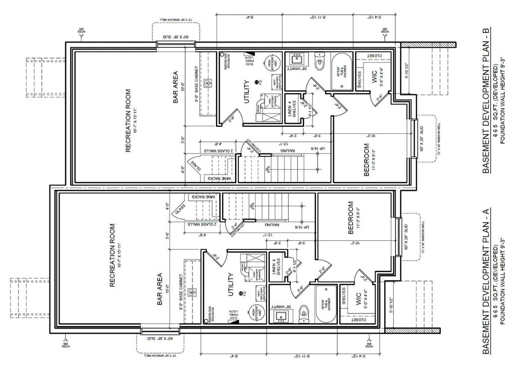
Nearing completion, with possession scheduled for June 2026, this beautifully designed semi-detached infill offers a rare opportunity to own a brand-new home in the heart of Glenbrook—with limited time remaining to personalize select finishes and make it your own. Offering 2,389 sq. ft. of finished living space, including 1,724 sq. ft. above grade (RMS) and a fully developed 665 sq. ft. basement, this home is thoughtfully designed for elevated everyday living and effortless entertaining. The main floor impresses with 10-foot ceilings, oversized windows, and a bright open-concept layout that flows seamlessly from the front flex room into the spacious kitchen and living area. At the center of the home, the kitchen combines style and function with a large island, quartz countertops, ceiling-height cabinetry, and a full appliance package. The adjoining living room is anchored by a fireplace and framed by large windows that fill the space with natural light. Upstairs, the primary suite offers a private retreat with a walk-in closet and a spa-inspired ensuite featuring a freestanding tub and a fully tiled glass shower. Two additional bedrooms, a 5-piece bathroom, and an upper-floor laundry room complete the second level with both comfort and convenience. The fully developed basement adds exceptional flexibility with a rec room, bar area, fourth bedroom, and full bathroom. For buyers looking ahead, the lower level also offers the potential to be reconfigured into a 2-bedroom legal suite (subject to City approval) with its own private entrance. Outside, enjoy a double garage, a landscaped yard, and a modern exterior finished with durable Hardie, SmartBoard accents, and asphalt shingles. Located in the welcoming and well-connected community of Glenbrook, this home places you close to parks, schools, shopping, transit, and just minutes from downtown Calgary. A rare opportunity to secure a brand-new, design-forward home in one of Calgary’s most established inner-city neighborhoods.
Interior Details
- Built-in Features
- Open Floorplan
- Quartz Counters
- Soaking Tub
- Sump Pump(s)
Outdoor Details
- None
Mr. Amandeep Budhail
Similar Property in Calgary
Are You Already Working With Us?
Please submit your email address to get the latest updates




















