For Sale
443, Railway Avenue, Alberta, Cayley
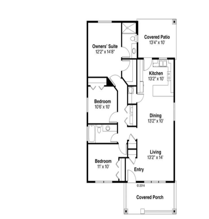
3 Beds
2 Bath
1454 Sqft
$539,000
About Property
Frontier Homes Inc., are welcoming you to the Hamlet of Cayley in the Foothills County, 13 km South of High River with AFFORDABLE Mid Grade NEW HOME. Featuring an inviting open floor plan, 3 bedrooms, 4 piece main bathroom, 3 piece ensuite, laundry closet, covered front porch foundations on screw piles with 4' insulated crawl space... (no basement), 60' x 100' lot with 24' x 26' detached garage. The Builder is offering great value presenting a blend of traditional and modern elements presenting the opportunity for the first time buyers or wanting to downsize in a great community for all ages. This Floor Plan is also offered on Lot 5.
Interior Details
- See Remarks
Outdoor Details
- Private Yard
MLS Number
228059379
Price
$539,000
Bedrooms
3
Bathroom
2
Square Footage
1454 sq ft
Property Type
RES
Community Name
Features
Forced Air,Natural Gas, Main Level
Parking Space Total
Lot Size
Bathroom Total
2
Bedrooms Total
3
Appliances
Vinyl Siding,Wood Frame
Cooling Type
None
Constructed Date
2025
Heating Type
Forced Air,Natural Gas
Pool
Exterior Finish
Bungalow
Fireplace Present
No
Fireplace Total
0
Flooring Type
Carpet,Ceramic Tile,Vinyl Plank
Foundation Type
Piling(s)
Half Bath Total
0
Stories Total
1
Size Interior
1454
Total Finished Area
1454
Spaces
Details
Double Garage Detached,See Remarks
LEVEL
TYPE
LENGTH
WIDTH
DIMENSIONS
Mr. Amandeep Budhail
Similar Property in Cayley
Are You Already Working With Us?
Please submit your email address to get the latest updates









